|
Ausführung
|
Gehobelt
|
|
Bauvariante
|
Kann auch spiegelverkehrt montiert werden
|
|
Behandlung
|
Unbehandelt
|
|
Dacheindeckung inbegriffen
|
Optional
|
|
Dachtyp
|
Pultdach
|
|
Glas
|
Isolierglas
|
|
Glasdicke
|
3-6-3mm
|
|
Hauptmaterial (detailliert)
|
Fichte
|
|
Inbegriffen
|
Zylinderschloss
|
|
Material
|
Holz
|
|
Trocknung
|
Getrocknet
|
|
Türtyp
|
Doppeltür
|
|
Türöffnungsrichtung
|
Scharniere rechts
|
|
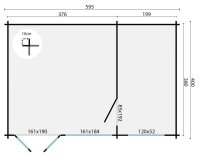
Fundament
|
575 x 380 cm
|
|
Wanddicke
|
40 mm
|
|
Firsthöhe
|
223 cm
|
|
Oberfläche Nebengebäude
|
7,6 m²
|
|
Abmessung der Eckverbindung
|
10 cm
|
|
Innenfläche
|
14,3 m²
|
|
Gesamtoberfläche
|
21,9 m²
|
|
Inhalt (m³)
|
50 m³
|
|
Dachfläche
|
25 m²
|
|
Länge
|
595 cm
|
|
Breite
|
400 cm
|
|
Anzahl Türen
|
2
|
|
Für Dachziegel geeignet
|
Nein
|
|
Anzahl Fenster (zu öffnen)
|
1
|
|
Anzahl Fenster (fest)
|
1
|
|
Anzahl Räume
|
2
|
weitere Artikel
| Artikelgewicht: |
1.300,00 kg
|
Angaben zur Produktsicherheit
Herstellerinformationen:
Tuindeco International
Europark Allee 1
NA Coevorden, Niederlande, 7742
support@tuindeco.com
Es gibt noch keine Bewertungen.